1 rum o kök på Tureborgsvägen 23, ledig lägenhet i Uddevalla

5 434 kr • 36 m2

1 rum o kök

Ort: Uddevalla

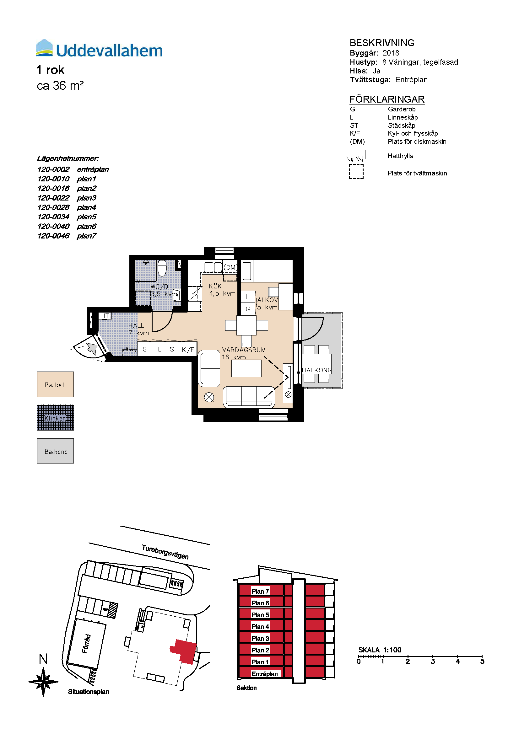
Objektnr.: 120-0040

Tillgänglig fr.o.m: 2025-12-01

Byggt: 2017

Publicerad till: 2025-10-27

Våningsplan: 6

Dagar publicerad: 5

Balkong

Hiss

Kostnad för kall- och varmvatten tillkommer

Värme Ingår

Beskrivning

Välkommen till Rudan, Uddevallahems nyaste fastighet på Tureborg! Här erbjuder vi ettor och tvåor som har lockat framförallt unga vuxna, studenter och par som letar efter sitt första hem. 

Inflyttningsklart sedan 2018, erbjuder Rudan en modern och öppen planlösning med stilren inredning, ekparkettgolv och fräscha badrum med klinker och halvkaklade väggar. 

Beläget högst upp på Tureborg, bjuder fastigheten på fantastisk utsikt över staden och de närliggande grönområdena och kolonilotterna.  

 Planlösning 

  120-0040

 

Tvättstuga 

Gemensam tvättstuga finns att tillgå i entréplan.  

Tidsbokning sker med digital bokningstavla via taggsystem. 

 Porttelefon 

Ja 

 Övrigt 

Balkongerna är öppna – Ej möjlighet till inglasning 

 Vid önskemål om tvätt- eller diskmaskin kan vår verkstad möjligen installera dessa i din lägenhet mot en installationsavgift. Hyresgästen väljer och bekostar önskad vitvara själv. Kontakta bovärden för att undersöka möjligheter och få prisuppgifter.  

Område

På 1950-talet växte en ny stadsdel upp i Uddevalla som gavs namnet från den gamla borgen på toppen av berget. Tureborg blev snabbt ett bostadsområde att räkna med. Idag, liksom då slingrar sig Bäveån genom området och ger en trivsam karaktär.