1 rum o kök på Svedjestråket 14, ledig lägenhet i Uddevalla

5 732 kr • 48 m2

1 rum o kök

Ort: Uddevalla

Objektnr.: 363-0526

Inflyttning fr.o.m: Nu

Byggt: 1973

Publicerad till: 2026-06-07

Våningsplan: 3

Dagar publicerad: 8

Rökfritt boende

Balkong

Hiss saknas

Kostnad för kall- och varmvatten tillkommer

Värme Ingår

Beskrivning

Dalaberg är en stadsdel i norra Uddevalla, med närhet till natur och goda bussförbindelser till centrum. Här finns service som matbutik, pizzeria, vårdcentral och bibliotek. Uddevallahem har många bostäder i området. Dalaberg har gott om grönområden och närhet till naturen, vilket ger invånarna goda möjligheter till ett aktivt utomhusliv.

Denna lägenhet har genomgått en ROT renovering våren 2023 med följande åtgärder.

  • Nytt badrum med kakel på väggar och plastmatta
  • Nya fönster
  • Ny lägenhetsdörr (säkerhetsdörr med tittöga)
  • Nya avloppsrör och vattenledningar
  • Ny fasad
  • Ventilation
  • Lägenheten har inglasad balkong
  • Övriga utrymmen i lägenheten så som kök, vardagsrum och sovrum underhålls utifrån skicket på respektive lägenhet.

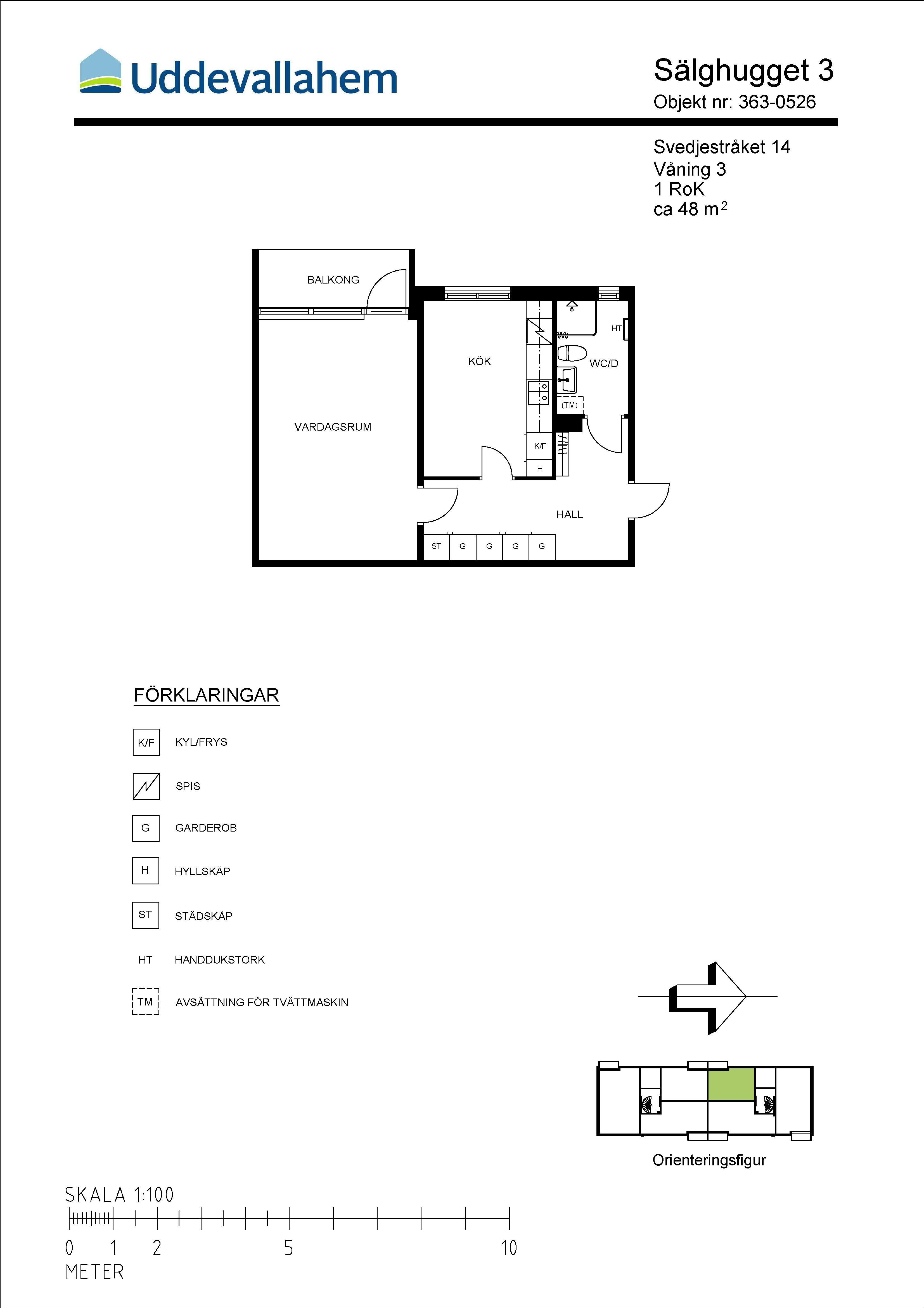
Planlösning

Ritning på planlösning på Svedjestråket 14

 

Tvättstuga

Varje fastighet har tillgång till gemensam tvättstuga.

Porttelefon

Ja   

Område

Något av det bästa med området Dalaberg, i norra delen av staden, är de vidsträckta grönområdena som inbjuder till både motion och rekreation. Dalaberg har också sitt eget stadsdelscentrum där du kan hitta mycket av det mest nödvändiga i vardagen. Till exempel finns här livsmedels- och servicebutik, pizzeria, vårdcentral, bibliotek, tandläkare, fritidsgård med mera.

Inkomstuppgifter